Trang chủ » THIẾT KẾ & THI CÔNG NHÀ PHỐ – NP426

THIẾT KẾ & THI CÔNG NHÀ PHỐ – NP426

Thông tin công trình
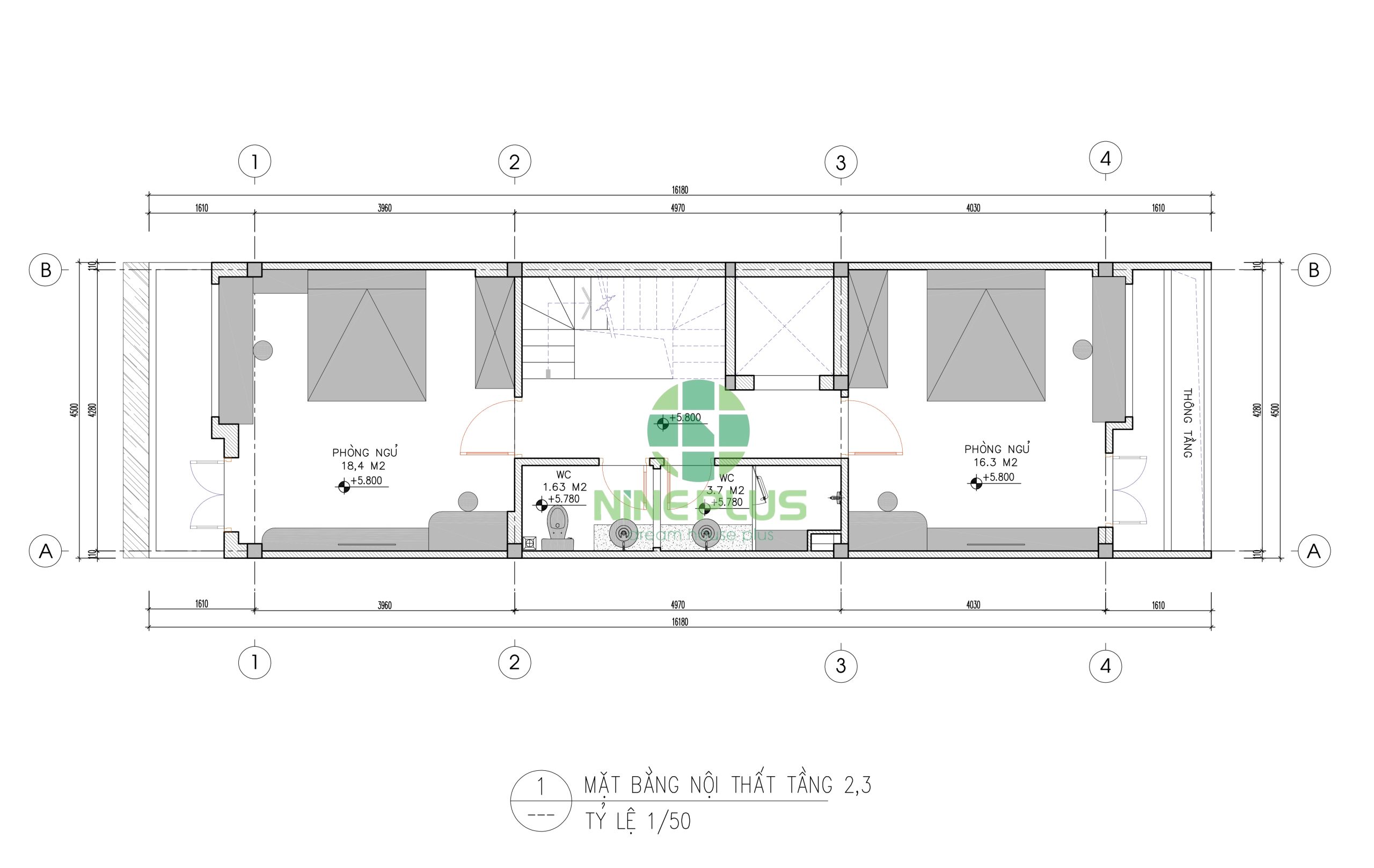
Dự án Tư vấn thiết kế: nhà ở gia đình chú Tuấn | Quy mô: 4 tầng 1 tum | Phong cách: Hiện đại
Vị trí công trình
Hà Nội
Số tầng
4
Diện tích đất
75
Diện tích xây dựng
Chi phí xây dựng

Nhà phố hay còn gọi là nhà ống, nhà liên kề là loại nhà sở hữu mặt tiền hẹp và chiều dài khiêm tốn, thường được xây sát nhau với chỉ 1 hoặc 2 mặt tiếp giáp với đường giao thông. Do đặc điểm này mà việc thiết kế cũng như thi công xây dựng nhà phố rất đặc thù. Trong loạt bài viết này, thiết kế 9PLUS sẽ giới thiệu đến bạn đọc những mẫu thiết kế nhà phố từ hiện đại đến cổ điển, tân cổ điển đẳng cấp mà bạn không nên bỏ qua.

Bài viết liên quan
Dự án: Tư vấn thiết kế nhà ở gia đình chị Hường | Quy mô: 5 tầng | Phong cách: Tân cổ điển
Chủ đầu tư: Cô Xuyến 🔹️ Địa điểm: Long Biên, Hà Nội 🔹️ Quy mô: 40m2 x 5 tầng
Dự án: Tư vấn thiết kế nhà ở gia đình anh Long | Quy mô: 5 tầng | Phong cách: Hiện đại
Chủ đầu tư: Anh Dân chị Hương Địa chỉ : Việt Hưng – Long Biên– Hà Nội Hạng Mục: Thiết kế – Thi Công Trọn Gói Diện tích sàn: 98 m2
Chủ đầu tư: Chú Minh - Địa chỉ : Ngọc Lâm, Long Biên, Hà Nội - Hạng Mục: Thiết kế – Thi Công Trọn Gói - Diện tích 1 sàn: 118 m2 - Tổng diện tích: 620 m2 - Đơn giá: 7.400.000VNĐ/m2 - Phong cách: Hiện Đại
Dự án: Thiết kế và thi công nhà ở gia đình anh Đô chị Minh | Quy mô: 5 tầng 1 tum | Phong cách: Hiện đại
Dự án Tư vấn thiết kế: nhà ở gia đình chú Giao | Quy mô: 2 tầng 1 tum | Phong cách: Hiện đại
Dự án: Tư vấn thiết kế nhà ở gia đình | Quy mô: 6 tầng | Phong cách: Hiện đại
Chủ đầu tư: Anh Long | Hạng Mục: Tư vấn thiết kế | Phong cách: Hiện đại