Trang chủ » BIỆT THỰ TÂN CỔ ĐIỂN – BT316

BIỆT THỰ TÂN CỔ ĐIỂN – BT316

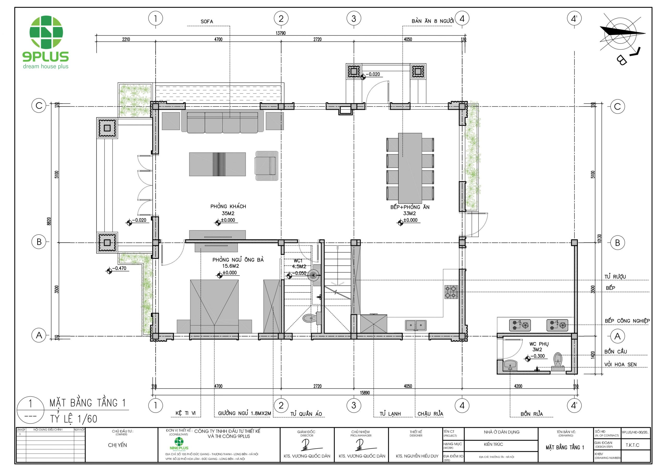
Thông tin công trình
Dự án: Gia đình anh Yến | Phong cách: Tân Cổ Điển | Hạng mục thực hiện: Thiết kế kiến trúc
Vị trí công trình
Thường Tín, Hà Nội
Số tầng
Diện tích đất
396m2
Diện tích xây dựng
150m2
Chi phí xây dựng

Thiết kế & Thi công biệt thự tân cổ điển đẹp tinh tế. Kiến tạo chính xác đến từng Centimet. Với hơn gần 20 năm kinh nghiệm thiết kế thi công, KTS luôn đưa ra các giải pháp tối ưu nhất. Thiết kế toàn quốc. Thi công an toàn. Tối ưu chi phí, thi công chính xác

Bài viết liên quan
CĐT: Anh Duy - ĐC: Thạch Bàn, Long Biên, Hà Nội - Diện tích đất: 260m2 - Diện tích xây dựng: 86m2 - Phong cách: Hiện đại
Dự án: Gia đình cô Hải | Phong cách: Tân cổ điển | Hạng mục thực hiện: Cải tạo ngoại thất | Dự toán: Từ 400 triệu
Dự án: Gia đình anh Hiệu – Xuân Trường – Nam Định - Diện tích đất: 203m2 - Diện tích xây dựng: 108m2 - Phong cách: Mái thái hiện đại - Hạng mục thực hiện: Thiết kế kiến trúc
Chủ đầu tư: Anh Giáp ◾ Địa chỉ : Hạ Hòa – Phú Thọ ◾ Hạng Mục: Tư Vấn – Thiết Kế. ◾ Diện tích 1 sàn: 111 m2 ◾ Phong cách: Biệt Thự Vườn
◾ Chủ đầu tư: Anh Trung ◾ Hạng Mục: Tư Vấn – Thiết Kế. ◾ Phong cách: Biệt Thự tân cổ điển
Dự án: Gia đình anh Đôn, Bắc Giang - Diện tích đất: 172m2 - Diện tích xây dựng: 140m2 - Phong cách: Địa Trung Hải Hạng mục thực hiện: Thiết kế kiến trúc
CĐT: Chị Lan ĐC: KĐT Nam Đầm Vạc, Vĩnh Yên, Vĩnh Phúc - Diện tích đất: 300m2 - Diện tích xây dựng: 162m2 - Phong cách: Hiện đại
Dự án: Gia đình Anh Duy – Gia Lâm Diện tích đất: 250m2 Diện tích xây dựng: 110m2 Phong cách: Tân cổ điển Hạng mục thực hiện: Thiết kế – Thi công Dự toán: 5 tỷ
Dự án: Gia đình chị Nga | Phong cách: Hiện đại | Hạng mục thực hiện: Thiết kế nội – ngoại thất